
Project Team
Architecture & Passive House Design Space Division – spacedivision.com
Builder SCD Construction – scdconstruction.co.nz
Certifier Sustainable Engineering Ltd – sustainableengineering.co.nz
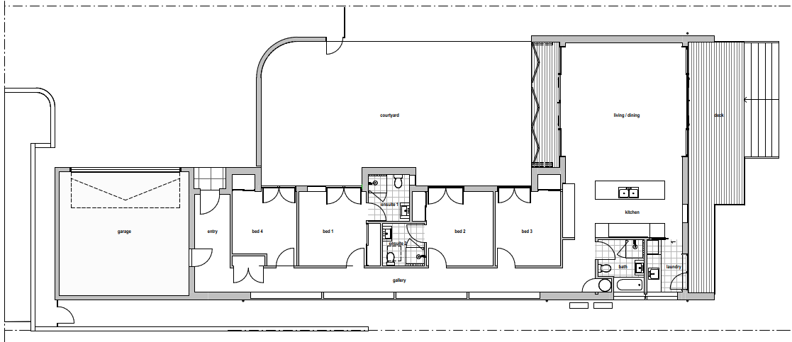
The Courtyard house is a silent retreat from its busy Auckland arterial road location. The clients’ initial interest in sustainable goals and the efficiency of off-site construction led them naturally toward Passive House certification. They sought a high-performance “forever home” that would not compromise on health or long-term comfort.
Since moving in, the owners are thrilled with the performance of the home. The internal environment remains consistently warm and quiet, providing the healthy sanctuary they envisioned during the design phase.
The project features locally made Optimal Abodo IV 68 timber windows, manufactured in Kerikeri. These units produced excellent airtightness and acoustic performance. To achieve the required airtightness, the builder sanded and primed the oiled timber frames to ensure the air tightness tapes achieved a permanent, high-performance bond.
A key lesson from the build involved the complexity of the structural interface details. The design team noted that mixing systems SIP panels and traditional timber framing added unnecessary difficulty to the construction and detailing. In future projects of this scale, they would recommend sticking to a single structural system, either all SIP or all timber, to simplify the build process and improve efficiency.
Passive House Metrics
- Heating Demand14.4kWh/m2/year
- Heating Load10.8 W/m2
- TFA161.6m2
- Form Factor4.1
- Air leakage @ 50Pa0.4 ACH/hour
- PER demand31.1kWh/m2/year
Passive House Database – TBA
Construction Details Average Values
- U-value External Walls0.19 W/(m2K)(R5.35)
- 165mm Formance SIPs panels + 45mm or 90mm services cavity
- U-value Floor0.22W/(m2K)(R4.6)
- 300mm MAXRaft pods with 130mm continuous EPS under
- U-value Roof 0.10W/(m2K)(R10.02)
- 265mm Formance SIPs panels + 140mm services cavity
- U-value Glass1.12 W/(m2K)(R0.89)
- Viridian Lightbridge double glazing
- U-Windows1.5 W/(m2K)(R0.7)
- Optimal Abodo IV 68 timber frames
- Ventilation Efficiency81%
- Stiebel Eltron LWZ 180




Photos and drawings Space Division

