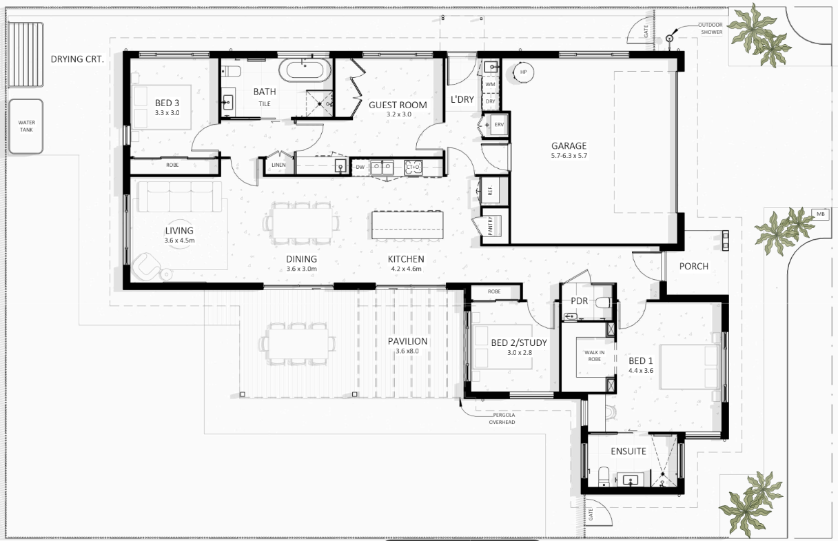
House Profile

Project Team
Architecture H4 Living – h4living.com.au
Passive House Design LAB Design – labdesign.com.au
Contractor Dall Designer Homes – dalldesignerhomes.com.au
Certifier Sustainable Engineering Ltd – sustainableengineering.co.nz
Passive House Metrics
- Heating Demand15.0kWh/m2/year
- Heating Load12.2 W/m2
- Cooling Demand23.1kWh/m2/year
- Cooling Load14.7W/m2
- TFA138.8m2
- Form Factor4.5
- Air leakage @ 50Pa0.4 ACH/hour
- PER demand60.0kWh/m2/year
Passive House Database – TBA
Construction Details Average Values
- U-value External Walls0.37 W/(m2K)(R2.67)
- Autoclaved Aerated Concrete (AAC) panel cladding, 90mm timber framing with R2.7 Knauf batts, Intello air control layer, uninsulated services cavity.
- U-value Floor1.50W/(m2K)(R0.66)
- Concrete slab with waffle pods.
- U-value Roof0.26W/(m2K)(R3.86)
- Timber truss roof with R4.0 earthwool insulation, Intello air control layer, uninsulated service cavity.
- U-value Glass1.23 W/(m2K)(R0.81)
- Lumatherm 6T/12/6
- U-Windows1.8 W/(m2K)(R0.5)
- Kommerling C70 Gold and Kommerling PremiDoor 76 lift slide system
- Ventilation Efficiency71%
- Stiebel Eltron LWZ 180 Enthalpie




