
A smart system thinking approach to achieving an optimised housing outcome.
Project Team
Architecture & Passive House Design VIA architecture Ltd – via-architecture.net
Consulting Engineers ENGCO – engco.co.nz
Builder Basin Builders
Project Director Richard Pope
Certifier Sustainable Engineering Ltd – sustainableengineering.co.nz
The success of a Passive House project depends on the commitment made at the very first meeting. Model 3 demonstrates that for a developer, treating high performance as a non-negotiable from day one eliminates costly rework and ensures the final product delivers on its promise of health and comfort. This project serves as a blueprint for high-end residential developments where technical rigour is integrated into the project management process rather than being treated as an add-on.
Project Director Richard Pope approached Model 3 as a prototype to test the scalability of high-performance construction. The core lesson for potential clients and developers is the value of expert delegation; the developer does not need to be a building scientist, provided they engage a qualified Passive House designer and project manager early. By making the decision to target certification before the first sketch was drawn, the team avoided the common trap of trying to “fix” a standard design to meet the standard, which often leads to compromised aesthetics or inflated costs.
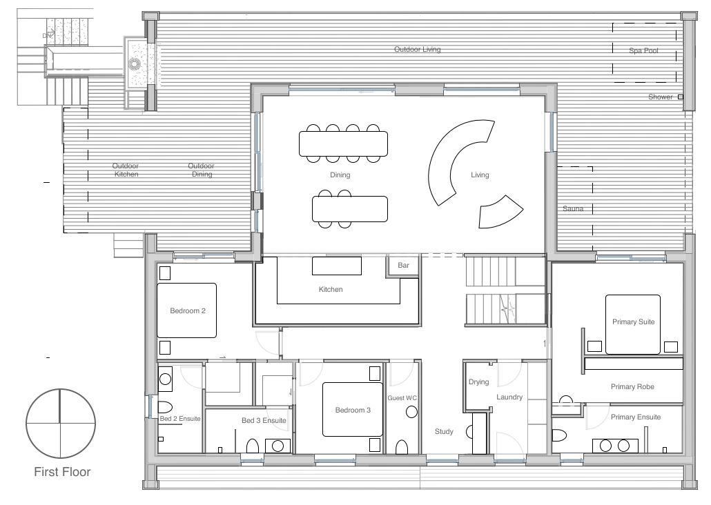
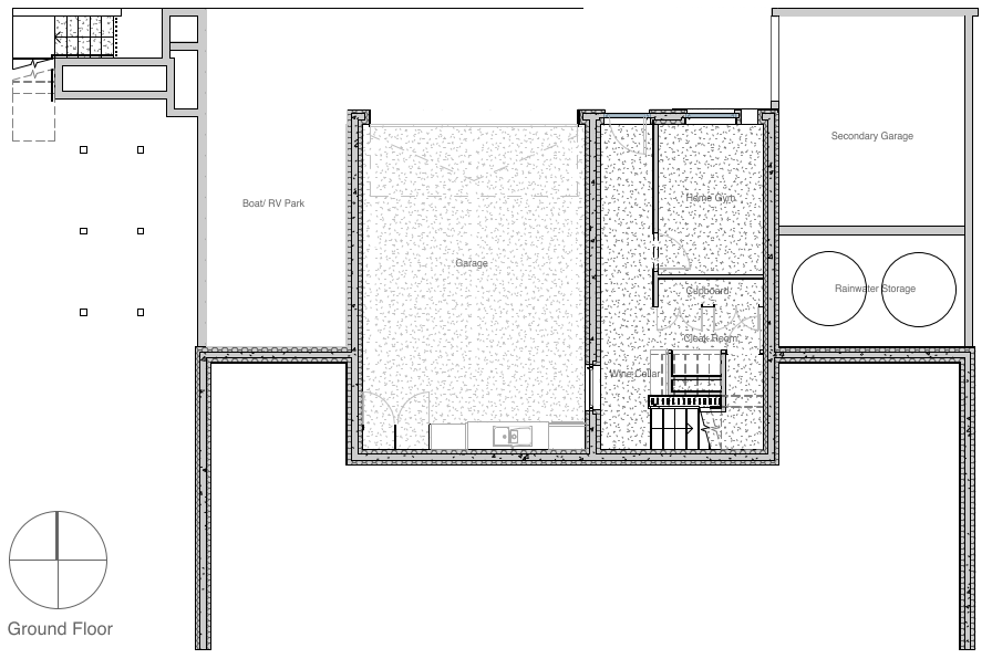
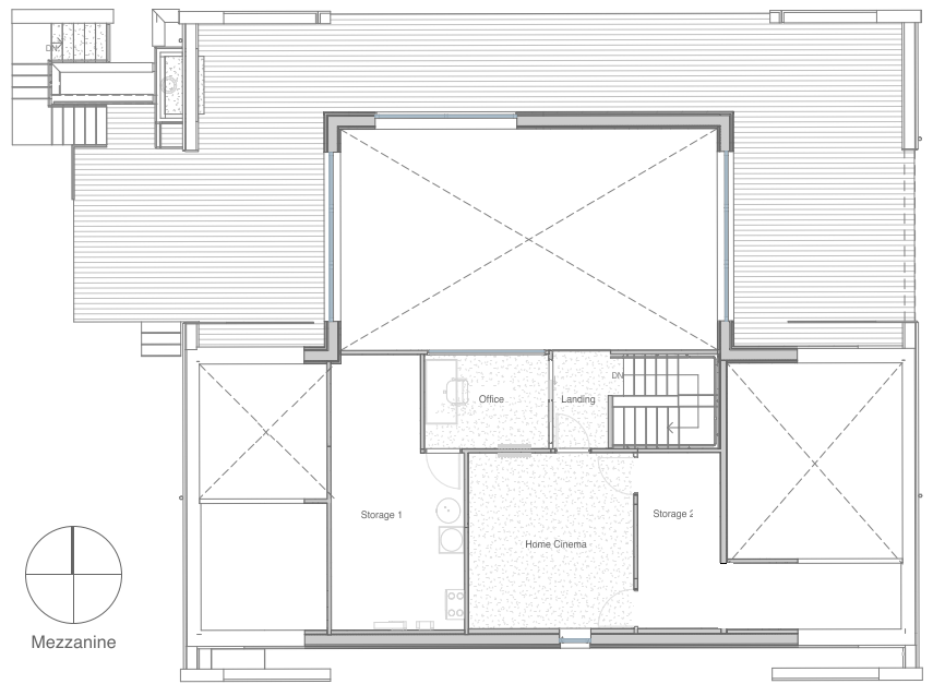
The design was specifically optimized for off-site manufacturing (OSM) through early, parallel engagement with key suppliers. Rather than treating materials as a later procurement step, Pope brought Hector Egger, ThermaDura, and Nudura into the design process from the start. This allowed the building’s form factor and dimensions to be dictated by the practicalities of factory floors, trailer decks, and crane reaches. This synergy between Passive House, suppliers and prefabrication ensures the precision required for airtightness and thermal bridge-free construction. Using prefabricated timber-framed wall panels with exterior wood fibre board and Nudura ICF walls allowed for high quality control and thermal optimization that is difficult to achieve with traditional site-based builds.
Financial viability was also a key focus of the blueprint. The project benefited from a shift in the banking sector, where lenders are increasingly offering tailored products for off-site manufacturing and high-performance builds. By living in the property for a full year, Pope verified the real-world performance of the design, confirming that the combination of timber+wood fibre and ICF walls with high-performance joinery creates an acoustic and thermal environment that far exceeds standard code-compliant homes. This prototype now stands as a proven, bankable model for future developments.
Cost compariable or less to equivalent high-quality homes at a higher certified standard, and delivered faster, this prototype now stands as a proven, bankable model for future developments.
With over 25 years in international asset management and property development experience, and 3 years in research and development culminating into this production model 3 house its an optimised outcome for this boutique home provider to take forward.
Key Suppliers
-
Passive House Metrics
- Heating Demand15.47kWh/m2/year
- Heating Load11.28 W/m2
- TFA217.4m2
- Form Factor3.4
- Air leakage @ 50Pa0.4 ACH/hour
- PER demand34kWh/m2/year
Passive House Database – 8230
-
Construction Details Average Values
- U-value External Walls0.13 W/(m2K)(R7.97)
- Prefabricated timber framed wall panels with exterior wood fibre board and insulated services cavity ICF (insulated concrete form) walls
- U-value Floor0.10W/(m2K)(R10.15)
- Concrete on EPS on ground, Suspended concrete on EPS
- U-value Roof 0.14W/(m2K)(R7.31)
- Prefabricated timber framed roof panels, part with insulated services cavity
- U-value Glass0.52 W/(m2K)(R1.92)
- Triple glazing with low-e and argon
- U-Windows0.8 W/(m2K)(R1.2)
- Thermadura Designline
- Ventilation Efficiency87%
- Zehnder ComfoAir Q350 HRV, Comfort Vent Q350 HRV














