
Project Team
Architecture – Salmond Architecture – salmondarchitecture.co.nz
Passive House Design – Sustainable Engineering Ltd – sustainableengineering.co.nz
Builder – Quinton Mills Building
Not Certified
A brand new Wanaka house targeting Passive House Classic certification is on the market but this was no spec build. It was intended to be a forever home for a couple who highly valued Passive House benefits and made it an integral part of the design brief.
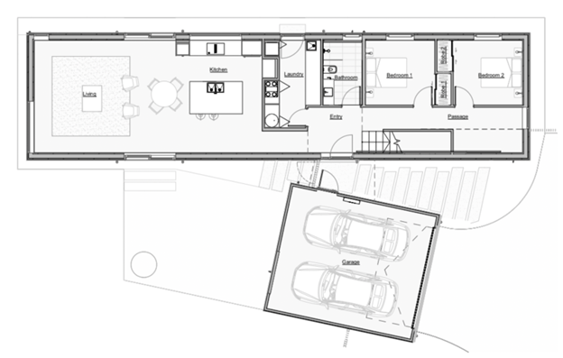
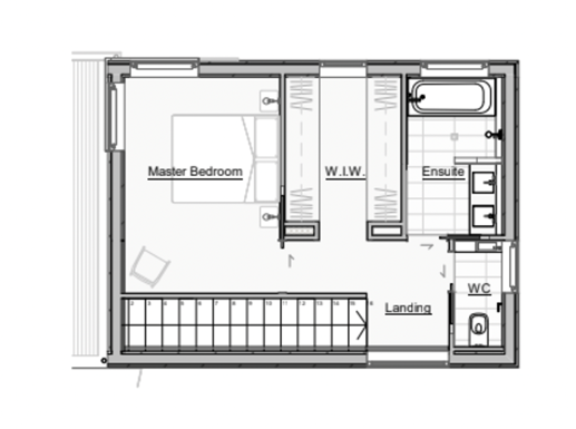
The home is characterised by a rigorous quality of both planning and execution and its elegant internal finishes only hint at the meticulous workmanship behind the wall linings. The floorplan reflects a determination by the owners to have all the functionality they needed and nothing more—a restrained sensibility not typically coupled with views of Lake Wanaka.
The house is a long rectangle, a simple shape but the form factor is higher because of its elongation—the open plan living, dining and kitchen span the entire width of the western end of the house. This makes the most of lake and mountain views and solar heat gain in winter. It’s a conventional timber frame atop a polished concrete slab, all appropriately insulated for this cold southern climate.
The architect and initial Passive House designer had worked together on Luggate Hall, a large public building in the region that achieved Passive House certification. The responsibility for Passive House design for this project moved to Sustainable Engineering when Jessica Winter joined the firm.
One of the owners is a construction professional and he was highly involved with the design and execution. This extended to running all the ducting for the MVHR system. This was made more complicated when the roof trusses weren’t built exactly according to the design! This required creating pop-outs for the ventilation ducting and then insulating this space. Fantech provided great on-site support and the owner notes that the MiTek Posi-STRUT product made duct routing very simple. Running the ducting through this section took 20 minutes, as opposed to many, many hours for the rest of the house.
The plans are notable for thoughtful design and excellent detailing. This was matched by the construction team at Quinton Mills Building who were meticulous in their focus on quality. This was their first Passive House project but they more than rose to the occasion. Their installation of the locally made Thermadura windows was outstanding. A blower door test result of 0.5 ACH would leave some builders celebrating: this team went hunting for leaks. Their reward was finding a small gash in the wall membrane they quickly remedied, for an interim blower door result of 0.39 ACH.
This property goes to auction by Ray White on 22 August 2025.
Passive House Metrics
NB These are provisional results, pending post-construction certification review
- Heating Demand13kWh/m2/year
- Heating Load11W/m2
- TFA141.4m2
- Form Factor3.9
- Air leakage @ 50Pa0.4 ACH/hour
- PER demand38.3kWh/m2/year
Passive House Database – TBD
Construction Details Average Values
- U-value External Walls0.17 W/(m2K)(R5.82)
- Ply rigid air barrier, 190 stud with two layers of R2.8 batts, Intello air control layer, 45mm service cavity with R1.2 batts
- U-value Floor0.11W/(m2K)(R9.43)
- Concrete slab on grade with 350mm Expol Thermaslab S
- U-value Roof 0.12W/(m2K)(R7.80)
- Skillion roof trusses with 275mm R7.4 batts, Intello air control layer, service cavity with R1.2 batts
- U-value Glass0.57 W/(m2K)(R1.80)
- ClimaGuard Premium2 triple glazing
- U-Windows0.91 W/(m2K)(R1.1)
- Thermadura Designline 90
- Ventilation Efficiency80%
- Zehnder ComfoAir Q350

Ground floor

First floor

North Elevation

South Elevation

East Elevation

West Elevation





